400-16 S 2nd St #416B

Society Hill

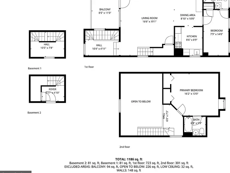
2 Bedrooms | 2 Bathroom | 1,412 Square Feet

$549,000

Tucked along a quiet cobblestone street just off Headhouse Square in Society Hill, this stylishly updated 2-bed, 2-bath condo blends historic charm with modern comfort. A private entrance leads to a light-filled home with vaulted ceilings, hardwood floors, exposed brick, and a beautiful fireplace (currently not in working order). The open living and dining areas flow into a sleek kitchen with soapstone counters and stainless steel appliances, while a spacious raised deck offers a peaceful retreat. Think of it as your living room al fresco! Both bedrooms feature ample closets with ensuite bathrooms and lots of natural light. Steps from top restaurants like Zahav, Fork, Provenance and other neighborhood favorites, Headhouse Square, the Delaware River Trail, and historic landmarks such as Independence Hall, this home offers exceptional city living. Pets under 50 lbs permitted. Ideal as a full-time residence or pied-à-terre.

 

Property Highlights

Property Type: Townhouse

Year Built: 1900

County: Philadelphia County

Neighborhood: Society Hill

School District: The School District of Philadelphia

Listing ID: PAPH2555554

Interior Features

Bedrooms: 2

Bathrooms: 2

Air Conditioning: Central A/C

Fireplaces: 1

Above Ground Sq Ft: 1,412 sq ft

Below Ground Sq Ft: 0 sq ft

Basement: Partial, Unfinished

Water: Public

Exterior Features

Lot: 0 sq ft

Lot Dimensions: 0

Zoning: CMX2

Sewer: Public Septic

Parking Features: On Street

Get In Touch

Cecile Steinriede

Listing Agent